練馬区 T様邸 スケルトンリフォーム 増改築事例
|
施工事例データ
| 施工概要 | 改築 2LDK 敷地面積:65㎡ 建築面積 1階:33㎡ 2階:25㎡ ご家族大人2名 |
|---|---|
| 地名 | 練馬区田柄 |
| 築年数 | 40年 |
| 工期 | 3ヶ月 |
スケルトンリフォーム工事のきっかけ
ご両親が住むお隣の賃貸の建物が空き、そこを新しくしてお住みになると言うご相談でした。
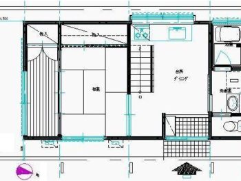
1階1DK、2階2間の昭和50年頃の建物。1階の居間であるところは広縁付きの和室で、階段を挟んで向こうに台所があり、その無効がトイレ、洗面、お風呂となっています。とにかくその階段が1DKを遮断して狭く感じる間取りでしたので、広いLDKがほしいとのご要望でした。そうすると洗面、風呂以外の1階の壁、全てを取り除くような感じにしなければ、ワンフロアーの間取りにはなりません。まず構造をチェックし階段を移動させられるかから検討しました。
また、周りが建物で密集して囲まれていて昼間でも暗いので、窓を大きく多く取ってほしいとのことです。
更に、オール電化の住宅も提案してほしいとのことで、ガスを無くして、IHキッチン、エコキュート、太陽光発電を取り入れ、リフォームとしてはフル装備で新築と変わらないご要望となり計画段階から楽しみになってきました。
提案内容
間取りは、階段の段数を増やし緩やかにしながらも場所を変えることができました。それによりLDKは12畳+対面キッチンを取ることができ、南側は幅2.6m高さ2mの掃き出し窓、道路側は出窓にして、とても明るく広々としました。
オール電化の計画は、太陽光発電のみ屋根の面(東西向き)と陽が当たる向きが合わず、あまりよいデータがでなかったので、太陽光の性能が上がる未来に持ち越すことにしました。
しかし、エコキュートの設置をしてガスの引き込みを無くします。ガス代はなくなります。安い深夜電力を活用してお湯を沸かしタンクに貯めて給湯代を節約できます。
IHヒーターも戸惑うのは最初だけです。今回は若夫婦ですが、予想外にご年配の方に人気が高く導入率80%ぐらいでしょうか、多く使っていただいております。悪評は一度も聞いたことはありません。
今回のポイントとして、エコキュートと明るく広くなったLDKを『施工のこだわり』でご覧下さい。
増改築リフォーム施工後
着工から完成(外観)
西井工務店の施工のこだわり





![このページの先頭へ戻る [altset]](https://www.nishii-koumuten.com/images/direct_ft.png)
















